Sıhhiye Tren Durağı Duvar Çalışması
Park Bahçeler Müdürlüğü  26.10.2022  00:00

Sıhhiye Tren Durağı Duvar Çalışması

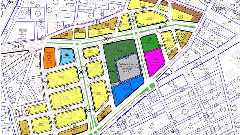
Hürriyet Mahallesi İmar Revizyon Çalışması-23-25-28 Adalar
İmar Ve Şehircilik Müdürlüğü  23.10.2022  16:05

Hürriyet Mahallesi İmar Revizyon Çalışması-23-25-28 Adalar

26. Cadde Kaldırım Tamiri
Fen İşleri Müdürlüğü  15.10.2022  12:33

26. Cadde Kaldırım Tamiri

Sssssssssssss
Fen İşleri Müdürlüğü  04.03.2021  02:02

Sssssssssssss

Load Time (S) : 0.035583